Jana Palacha 2803

Fotografie 1/11 Jana Palacha 2803

hlavní prostor

Fotografie 2/11 hlavní prostor

Fotografie 3/11

Fotografie 4/11

vedlejší kancelář

Fotografie 5/11 vedlejší kancelář

kuchyňka

Fotografie 6/11 kuchyňka

WC

Fotografie 7/11 WC

Fotografie 8/11

výlevka

Fotografie 9/11 výlevka

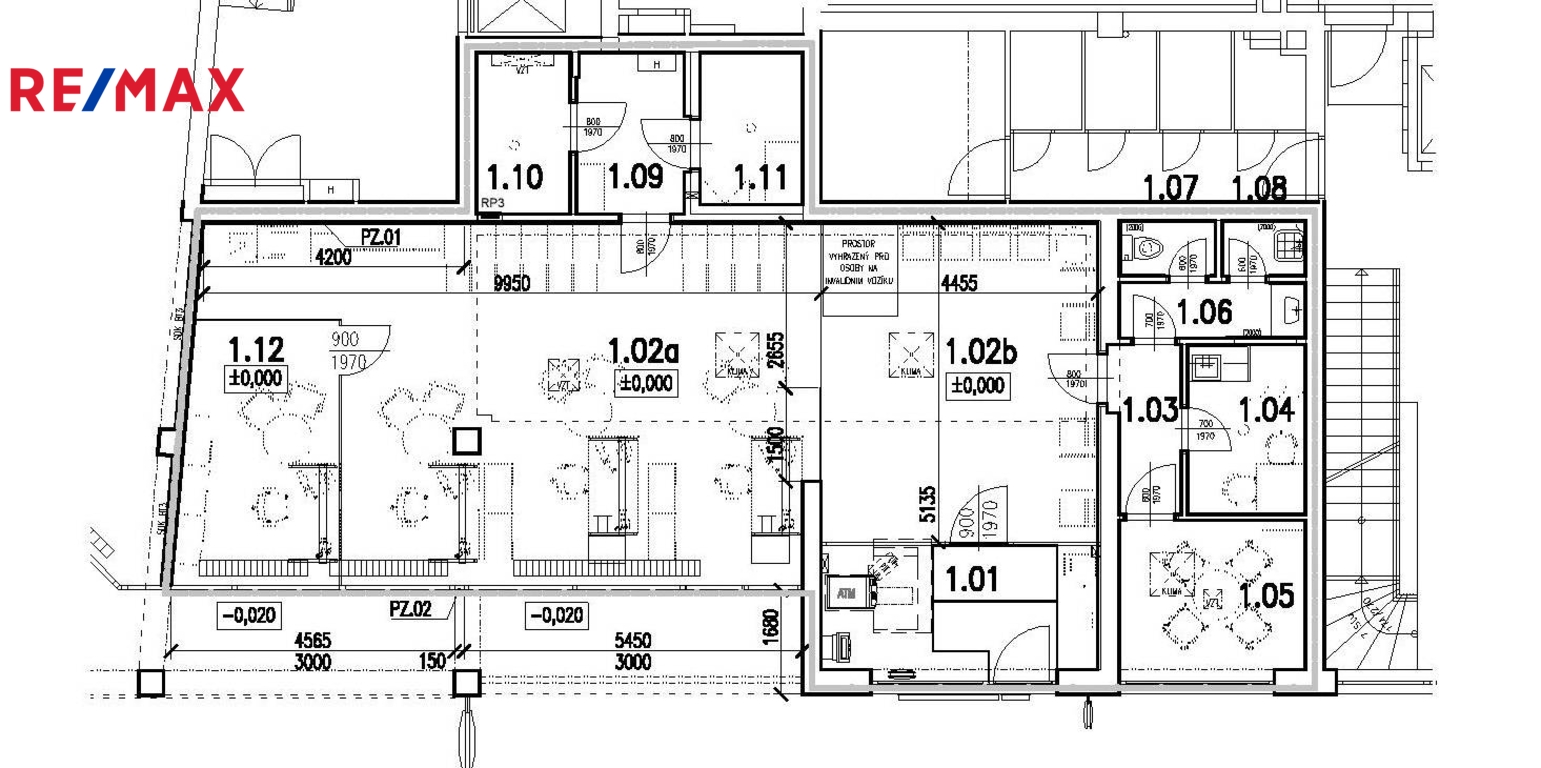
půdorys

Fotografie 10/11 půdorys

adresa

Fotografie 11/11 adresa

Jana Palacha 2803

Jana Palacha 2803

hlavní prostor

hlavní prostor

vedlejší kancelář

vedlejší kancelář

kuchyňka

kuchyňka

WC

WC

výlevka

výlevka

půdorys

půdorys

adresa

adresa

Poslat dotaz
TOPlist